БП

Чертеж изделия:
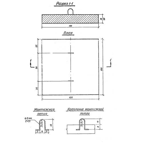
Характеристики изделия:
ПараметрЗначение
длина1000 мм
ширина1000 мм
высота160 мм
масса384 кг
нормативный документАльбом №750

БП  Плиты бетонные Альбом №750.