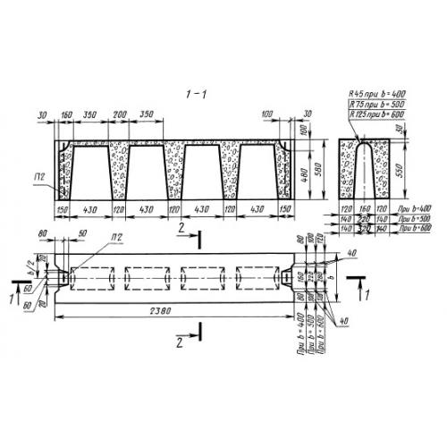
ФБП 24.5.6 пустотные фундаментные блоки
Характеристики изделия:
| Параметр | Значение |
|---|---|
| длина | 2380 мм |
| ширина | 500 мм |
| высота | 580 мм |
| масса | 1260 кг |
| нормативный документ | ГОСТ 13579-78 |
Цена:
Рассчитать стоимостьФБП 24.5.6 Фундаментные блоки пустотные ГОСТ 13579-78.
