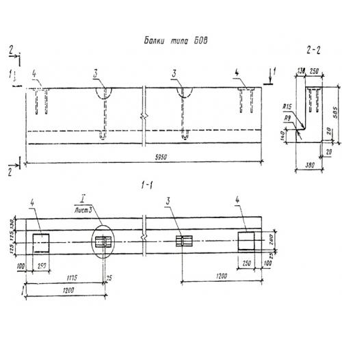
БОВ балки обвязочные
Характеристики изделия:
| Параметр | Значение |
|---|---|
| длина | 5950 мм |
| ширина | 380 мм |
| высота | 585 мм |
| масса | 2450 кг |
| нормативный документ | ГОСТ 24893-81 |
Цена:
Рассчитать стоимостьБОВ Балки обвязочные с выступом в виде консоли ГОСТ 24893-81.
| Параметр | Значение |
|---|---|
| длина | 5950 мм |
| ширина | 380 мм |
| высота | 585 мм |
| масса | 2450 кг |
| нормативный документ | ГОСТ 24893-81 |
БОВ Балки обвязочные с выступом в виде консоли ГОСТ 24893-81.
