5ПР 1AIV п
| Параметр | Значение |
|---|---|
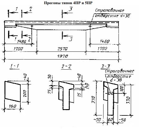
| длина | 5970 мм |
| ширина | 160 мм |
| высота | 370 мм |
| масса | 400 кг |
| нормативный документ | ГОСТ 26992-86 |
ГОСТ 26992-86
5ПР 1AIV п Прогоны с напрягаемой арматурой класса A-IV .
Марка прогона состоит из буквенно-цифровых групп, разделенных дефисами. Марки прогонов содержат следующие обозначения основных характеристик прогонов:
- первая группа - тип прогона;
- вторая группа - порядковый номер прогона по несущей способности, а также класс напрягаемой продольной арматуры для предварительно напряженных прогонов;
- третья группа - дополнительные характеристики, отражающие стойкость к воздействию агрессивной среды, характеризуемую показателем проницаемости бетона: Н - бетон нормальной проницаемости; П - бетон пониженной проницаемости. При наличии в прогонах дополнительных закладных изделий в третьей группе приводят их обозначения строчными буквами русского алфавита.
Прогоны подразделяют на типы: а) с полкой, перпендикулярной к ребру прогона:
- для зданий с уклоном кровли до 25 % включ.: 1ПР - с ненапрягаемой продольной арматурой, 2ПР - предварительно напряженные;
- для зданий с уклоном кровли до 5 % включ.: 3ПР - предварительно напряженные;
б) с косой полкой для зданий с уклоном кровли 25 % : 4ПР - с ненапрягаемой продольной арматурой, 5ПР - предварительно напряженные.