Специальная угловая одноцепная опора с оттяжкой УПС 23

Чертеж изделия:

Краткая информация

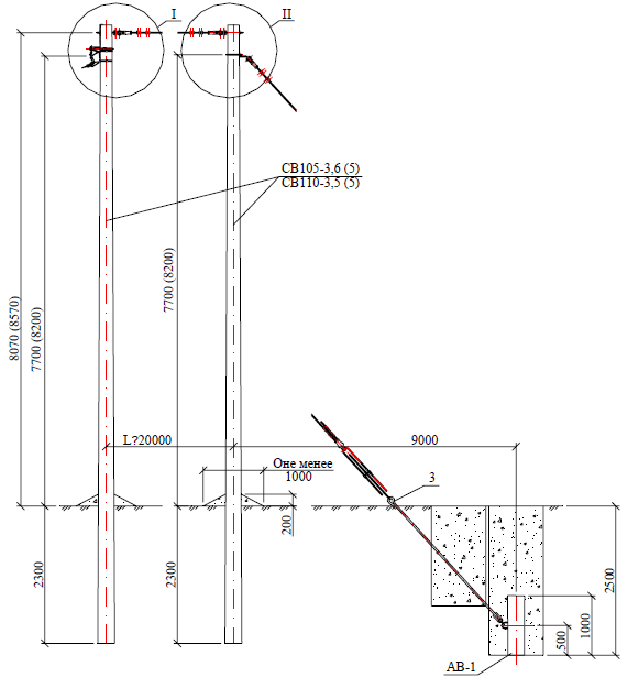
Стальная угловая  одноцепная опора с оттяжкой для линий ВЛ 10 кВ УПС 23 состоит из стоек СВ 105-3,6 и СВ 110-3,5 и плиты анкерной П-3 и,  а также стальных конструкций. Опора УПС 23 - это инженерная конструкция, предназначенная для создания магистральных линий для подведения электричества к населению. На опоре расположена одна трехфазная линия. Анкерную опору применяют на резких поворотах магистрали (более 20 градусов), где существует риск падения опоры. Опора это сочетание вибрированных трех стоек и трех анкерных плит. Анкерные крепления являются наилучшим вариантом для заглубленных опор, закрепленных под углом с расчетным изгибающим моментом 35 кНм. Основным элементом опоры является пара вибрированных стоек прямоугольного сечения. Анкерные опоры УПС 23 предназначены для применения на крутых поворотах трассы ЛЭП, где возникают значительные продольные нагрузки. Они способны выдерживать значительные вырывающие, продольные и давящие нагрузки, позволяя надежно закрепить распределительную сеть. Опоры УПС 23 отличаются надежностью, прочностью и безопасностью. 

При обычном уровне эксплуатации анкерные опоры воспринимают одностороннюю продольную нагрузку натяжения тросов и проводов. Опоры железобетонные ЛЭП предназначены для использования в районах с ветровыми показателями I-II. Расчетные температуры для использования анкерных опор принимаются до -40°С. Для эксплуатации в северных широтах, где температура может, опускается ниже сорокоградусной отметки, опоры изготавливаются по заказу, учитывая особенность климатических условий. Опоры УПС 23 предназначены для использования в неагрессивных  районах . Для эксплуатации в агрессивных средах опоры анкерные предварительно защищают специальными веществами. Защитное покрытие наносится на 3 метра от нижнего конца изделия. Опоры УПС 23 выдерживают монтажные усилия при натяжке трех проводов. Все изделия от компании «Бетондеталь» проходят жесткий контроль качества и соответствуют всем стандартам и нормам ГОСТ.

Производство

Материалом для изготовления анкерных опор служит тяжелый бетон вибрированный. Бетон для опор обладает низкой водонепроницаемости W8. Морозостойкость опор для различных климатических условий F150-F200. Высококачественный бетон, используемый в процессе производства опор УПС 23 устойчив к воздействию окружающей среды и химических веществ. Бетон имеет свойства устойчивости к коррозии и ветровым нагрузкам.

Изделия армируются стальным каркасом изготовленный из стрежневой арматуры диаметра 12-20 мм. Арматура выполняется из предварительно напряженной стали высокого класса  (АIV, A-V). Электрическое сопротивление между арматурой и закладными деталями не должно быть менее 10000 Ом. Абсолютно все металлические детали концевых опор предварительно обрабатываются антикоррозийными веществами. Железобетонные опоры УПС 23 - это высококачественное изделия, которое, при соблюдении всех технологических норм, способно прослужить не один десяток лет.  

Монтаж

Опора УПС 23 закрепляется в котловане на глубину от 2 до 2,5 метров. Анкерные опоры применяются совместно с анкерными плитами. Стойку опоры устанавливают не вертикально, а с наклоном на 10-20 см в сторону, противоположную воздействию усилий от натяжения проводов.

Маркировка изделия

Маркировка анкерных опор УПС 23 представляет собой цифробуквенный набор, который включает в себе условные обозначения наименования изделия, цифровой индекс, указывающий на напряжение ВЛ и типоразмер. 

Например, рассмотрим анкерные опоры УПС 23, где:

«УПС»- угловая специальная опора;

Цифра «23» - класс напряжения.

Хранение и транспортировка

Хранение опор УПС 23 осуществляется в горизонтальном положении, штабелями. Высота одного штабеля изделия не должна превышать более 5 изделий в стопке, для предотвращения опасности падения или деформации изделия. Стойки анкерные укладывают таким образом, что бы закладные изделия ни соприкасались, а изделия для крепления траверс располагались вертикально. Нижний ряд стоек располагается на прокладки специальной формы, а следующие ряды размещаются на деревянных прокладках.