2К 3.36
Характеристики изделия:
| Параметр | Значение |
|---|---|
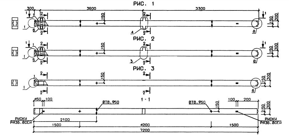
| длина | 7200 кг |
| ширина | 300 мм |
| высота | 300 мм |
| масса | 1690 кг |
| нормативный документ | Серия 1.020.1-3пв |
Цена:
Рассчитать стоимость2К 3.36 Колонны Серия 1.020.1-3пв.
| Параметр | Значение |
|---|---|
| длина | 7200 кг |
| ширина | 300 мм |
| высота | 300 мм |
| масса | 1690 кг |
| нормативный документ | Серия 1.020.1-3пв |
2К 3.36 Колонны Серия 1.020.1-3пв.