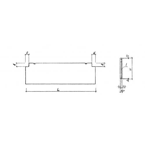
ПГ 56.15 панели перегородки

Чертеж изделия:
Характеристики изделия:
ПараметрЗначение
длина5640 мм
ширина80 мм
высота1485 мм
масса1070 кг
нормативный документСерия 1.030.9-2

ПГ 56.15   Перегородки панельные зданий промышленных и сельскохозяйстыенных предприятий Серия 1.030.9-2.