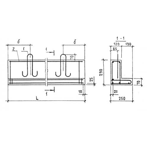
1ПГ 44 перемычки балочные

Чертеж изделия:
Характеристики изделия:
ПараметрЗначение
длина4410 мм
ширина250 мм
высота290 мм
масса484 кг
нормативный документСерия 1.038.1-1

1ПГ 44  Перемычки балочные Серия 1.038.1-1.