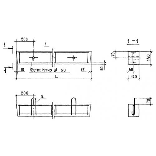
2ПБ 25 перемычки брусковые

Чертеж изделия:
Характеристики изделия:
ПараметрЗначение
длина2460 мм
ширина120 мм
высота140 мм
масса103 кг
нормативный документСерия 1.038.1-1

2ПБ 25  Перемычки брусковые Серия 1.038.1-1.