7ПБ 60 перемычки брусковые

Чертеж изделия:
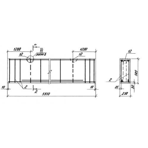
Характеристики изделия:
ПараметрЗначение
длина5950 мм
ширина250 мм
высота585 мм
масса2175 кг
нормативный документСерия 1.038.1-1

7ПБ 60  Перемычки брусковые Серия 1.038.1-1.