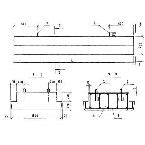
4БР 24.13.4

Чертеж изделия:
Характеристики изделия:
ПараметрЗначение
длина2380 мм
ширина1300 мм
высота450 мм
вес3520 кг
серия1.111.1-5

4БР 24.13.4 Балки ростверков по серии 1.111.1-5.