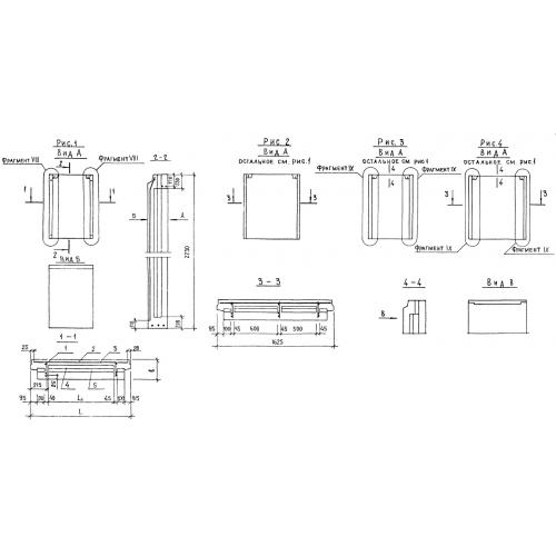
3НЦ 10.22.30
Характеристики изделия:
| Параметр | Значение |
|---|---|
| длина | 1025 мм |
| ширина | 300 мм |
| высота | 2230 мм |
| вес | 1270 кг |
| серия | 1.117.1-14 |
Цена:
Рассчитать стоимость3НЦ 10.22.30 Стеновые цокольные панели по серии 1.117.1-14.
| Параметр | Значение |
|---|---|
| длина | 1025 мм |
| ширина | 300 мм |
| высота | 2230 мм |
| вес | 1270 кг |
| серия | 1.117.1-14 |
3НЦ 10.22.30 Стеновые цокольные панели по серии 1.117.1-14.
