П 60.15.22
Характеристики изделия:
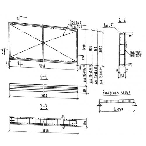
| Параметр | Значение |
|---|---|
| длина | 5980 мм |
| ширина | 1490 мм |
| высота | 220 мм |
| вес | 2450 кг |
| серия | 1.143-4 |
Цена:
Рассчитать стоимостьП 60.15.22 Панели перекрытия сплошные по серии 1.143-4.
| Параметр | Значение |
|---|---|
| длина | 5980 мм |
| ширина | 1490 мм |
| высота | 220 мм |
| вес | 2450 кг |
| серия | 1.143-4 |
П 60.15.22 Панели перекрытия сплошные по серии 1.143-4.
