ПВ 42.12.40

Чертеж изделия:
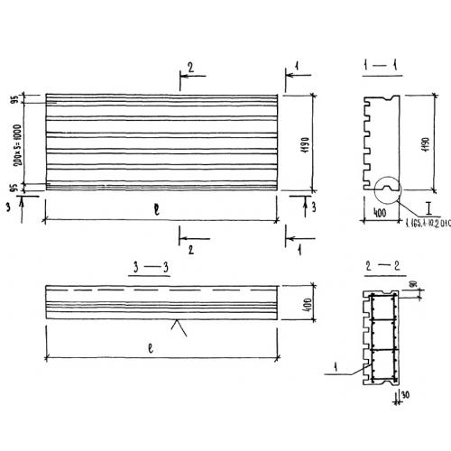
Характеристики изделия:
ПараметрЗначение
длина4170 мм
ширина1190 мм
высота400 мм
вес1400 кг
серия1.165.1-10

ПВ 42.12.40 Вентилируемые панели покрытия по серии 1.165.1-10.