П 54.9.35
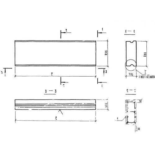
Характеристики изделия:
| Параметр | Значение |
|---|---|
| длина | 5370 мм |
| ширина | 890 мм |
| высота | 350 мм |
| вес | 1220 кг |
| серия | 1.165.1-10 |
Цена:
Рассчитать стоимостьП 54.9.35 Панели покрытия по серии 1.165.1-10.
| Параметр | Значение |
|---|---|
| длина | 5370 мм |
| ширина | 890 мм |
| высота | 350 мм |
| вес | 1220 кг |
| серия | 1.165.1-10 |
П 54.9.35 Панели покрытия по серии 1.165.1-10.
