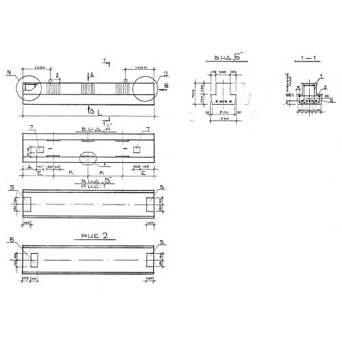
РДС 4.57

Чертеж изделия:
Характеристики изделия:
ПараметрЗначение
длина5630 мм
ширина550 мм
высота450 мм
вес2600 кг
серия1.220.1-2

РДС 4.57 Ригели покрытий по серии 1.220.1-2.