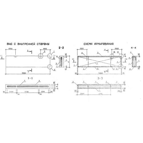
ПСТ 60.13.3.0 панели стеновые

Чертеж изделия:
Характеристики изделия:
ПараметрЗначение
длина5980 мм
ширина300 мм
высота1285 мм
масса2940 кг
нормативный документСерия 1.232.1-7

ПСТ 60.13.3.0  Панели стеновые трехслойные (рядовые) Серия 1.232.1-7.