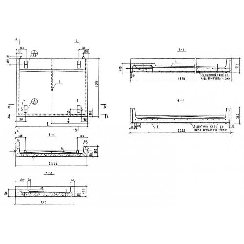
КВ 22

Чертеж изделия:
Характеристики изделия:
ПараметрЗначение
длина2200 мм
ширина1840 мм
высота290 мм
масса1250 кг
нормативный документСерия 1.238-1

КВ 22  Козырьки входов Серия 1.238-1.