ПП 15.4 плиты парапетные
Характеристики изделия:
| Параметр | Значение |
|---|---|
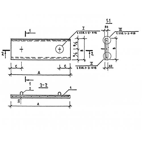
| длина | 1490 мм |
| ширина | 420 мм |
| высота | 80 мм |
| масса | 100 кг |
| нормативный документ | Серия 1.238.1-2 |
Цена:
Рассчитать стоимостьПП 15.4 Плиты парапетные Серия 1.238.1-2.
| Параметр | Значение |
|---|---|
| длина | 1490 мм |
| ширина | 420 мм |
| высота | 80 мм |
| масса | 100 кг |
| нормативный документ | Серия 1.238.1-2 |
ПП 15.4 Плиты парапетные Серия 1.238.1-2.
