БК 12 балки подкрановые

Чертеж изделия:
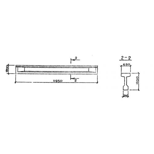
Характеристики изделия:
ПараметрЗначение
длина11950 мм
ширина650 мм
высота1200 мм
масса10300 мм
нормативный документСерия 1.426.1-4

БК 12  Подкрановые балки Серия 1.426.1-4.