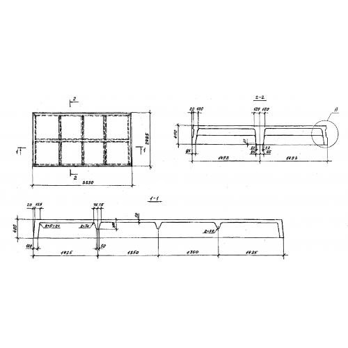
1П 1 Плиты ребристые из тяжелого бетона
Характеристики изделия:
| Параметр | Значение |
|---|---|
| длина | 5550 мм |
| ширина | 2985 мм |
| высота | 400 мм |
| масса | 4850 кг |
| нормативный документ | Серия 1.442.1-1.87 |
Цена:
Рассчитать стоимость1П 1 Плиты перекрытия и покрытия ребристые из тяжелого бетона Серия 1.442.1-1.87.
