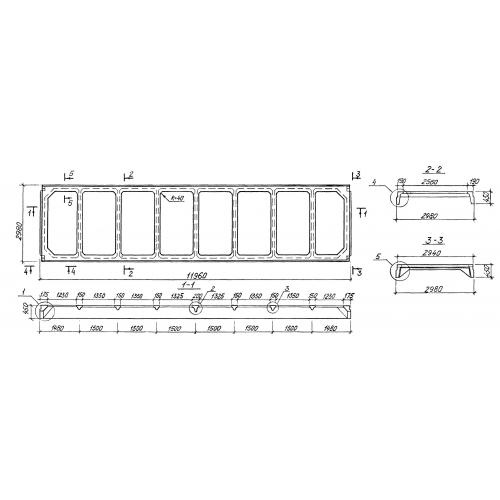
1ПЛ 12
Характеристики изделия:
| Параметр | Значение |
|---|---|
| длина | 11960 мм |
| ширина | 2980 мм |
| высота | 450 мм |
| масса | 5700 кг |
| нормативный документ | Серия 1.465.1-15 |
Цена:
Рассчитать стоимость1ПЛ 12 Плиты с проемом в полке для устройства легкосбрасываемой кровли Серия 1.465.1-15.
