Тв 5

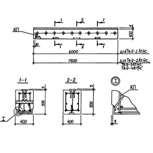
Чертеж изделия:
Характеристики изделия:
ПараметрЗначение
длина6000 мм
ширина400 мм
высота500 мм
масса3000 кг
нормативный документСерия 3.015-3/92

Тв 5  Траверсы Серия 3.015-3/92.