Т 1
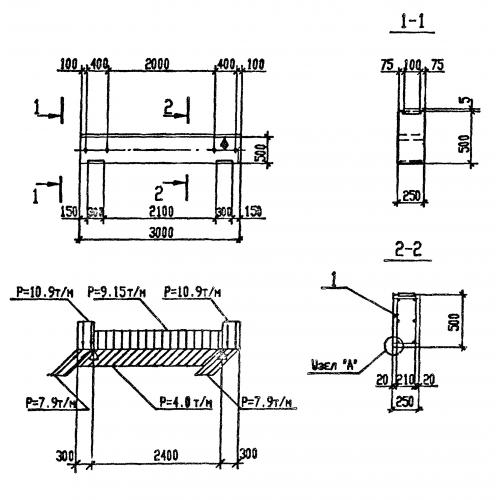
Характеристики изделия:
| Параметр | Значение |
|---|---|
| длина | 3000 мм |
| ширина | 250 мм |
| высота | 500 мм |
| вес | 940 кг |
| серия | 3.016.1-11 |
Цена:
Рассчитать стоимостьТ 1 Траверсы по серии 3.016.1-11.
| Параметр | Значение |
|---|---|
| длина | 3000 мм |
| ширина | 250 мм |
| высота | 500 мм |
| вес | 940 кг |
| серия | 3.016.1-11 |
Т 1 Траверсы по серии 3.016.1-11.
