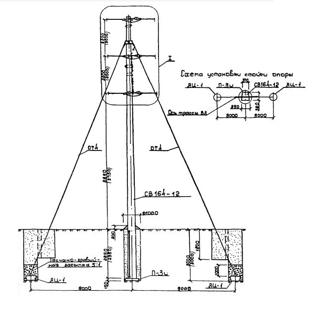
2А 10

Чертеж изделия:
Характеристики изделия:
ПараметрЗначение
длина16550 мм
ширина390 мм
высота380 мм
масса4260 кг
нормативный документСерия 3.407.1-143

2А 10   Анкерные опоры  Серия 3.407.1-143.