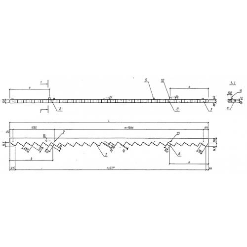
ЛБ 1

Чертеж изделия:
Характеристики изделия:
ПараметрЗначение
длина9330 мм
ширина293 мм
высота120 мм
вес630 кг
серия3.501-180.95

ЛБ 1  Лестничные блоки (косоуры) по серии 3.501-180.95.