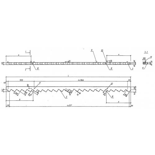
ЛБ 4

Чертеж изделия:
Характеристики изделия:
ПараметрЗначение
длина3730 мм
ширина293 мм
высота120 мм
вес250 кг
серия3.501-180.95

ЛБ 4  Лестничные блоки (косоуры) по серии 3.501-180.95.