Ф 1
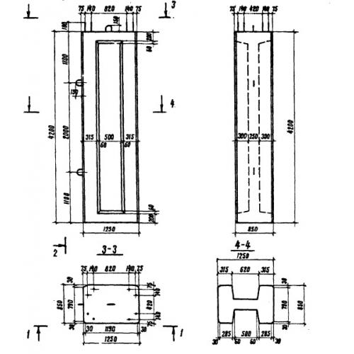
Характеристики изделия:
| Параметр | Значение |
|---|---|
| длина | 4200 мм |
| ширина | 1250 мм |
| высота | 850 мм |
| вес | 8400 кг |
| серия | 3.501.1-131 |
Цена:
Рассчитать стоимостьФ 1 Блоки фундамента по серии 3.501.1-131.
| Параметр | Значение |
|---|---|
| длина | 4200 мм |
| ширина | 1250 мм |
| высота | 850 мм |
| вес | 8400 кг |
| серия | 3.501.1-131 |
Ф 1 Блоки фундамента по серии 3.501.1-131.
