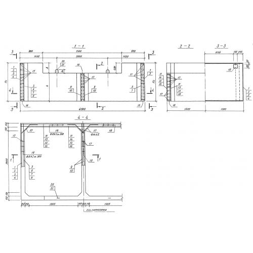
КБ 1-1.2

Чертеж изделия:
Характеристики изделия:
ПараметрЗначение
длина4900 мм
ширина3000 мм
высота1200 мм
вес5900 кг
серия3.501.1-167

КБ 1-1.2 Короба по серии 3.501.1-167.