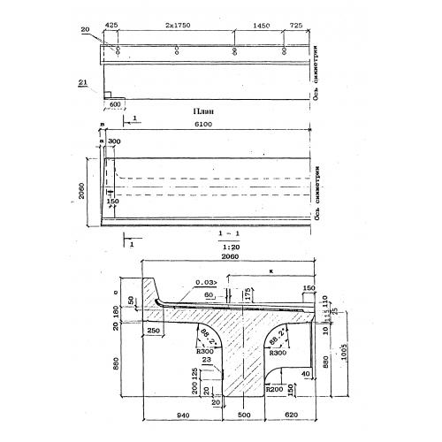
Б 1.122
Характеристики изделия:
| Параметр | Значение |
|---|---|
| длина | 12200 мм |
| ширина | 2060 мм |
| высота | 1430 мм |
| вес | 35400 кг |
| серия | 3.501.1-175.93 |
Цена:
Рассчитать стоимостьБ 1.122 Балки ребристые с ненапрягаемой арматурой по серии 3.501.1-175.93.
| Параметр | Значение |
|---|---|
| длина | 12200 мм |
| ширина | 2060 мм |
| высота | 1430 мм |
| вес | 35400 кг |
| серия | 3.501.1-175.93 |
Б 1.122 Балки ребристые с ненапрягаемой арматурой по серии 3.501.1-175.93.
