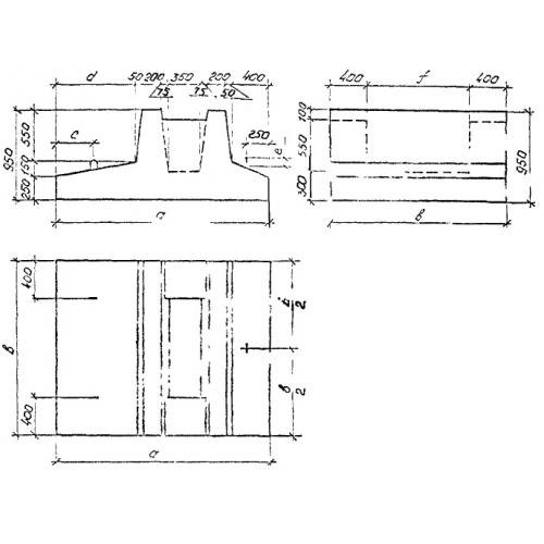
Ф 7 блок фундамента

Чертеж изделия:
Характеристики изделия:
ПараметрЗначение
длина1900 мм
ширина2300 мм
высота950 мм
масса5100 кг
нормативный документСерия 3.501.1-179.94

Ф 7  Блоки фундаментов по Серии 3.501.1-179.94.