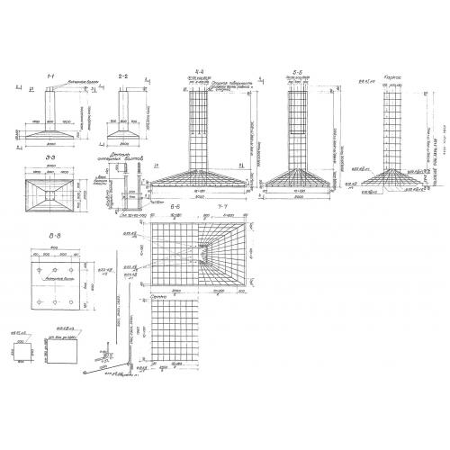
Б 3-3.0

Чертеж изделия:
Характеристики изделия:
ПараметрЗначение
длина3000 мм
ширина2000 мм
высота3000 мм
вес6800 кг
серия3.501.2-123

Б 3-3.0 Фундаментные блоки по серии 3.501.2-123.