ФЦ-5

Чертеж изделия:
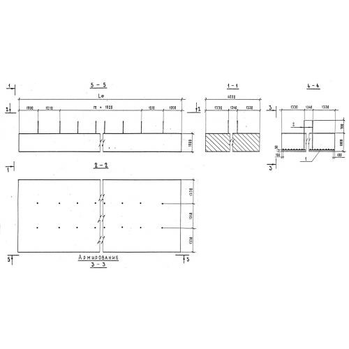
Характеристики изделия:
ПараметрЗначение
длина13600 мм
ширина4000 мм
высота1700 мм
масса136000 кг
нормативный документСерия 3.503-23

ФЦ-5 Фундаменты  Серия 3.503-23.