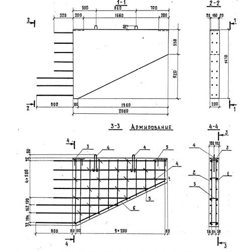
К-2

Чертеж изделия:
Характеристики изделия:
ПараметрЗначение
длина2060 мм
ширина200 мм
высота1470 мм
масса1100 кг
нормативный документСерия 3.503-23

К-2 Открылки по Серии 3.503-23.