2ПР 9

Чертеж изделия:
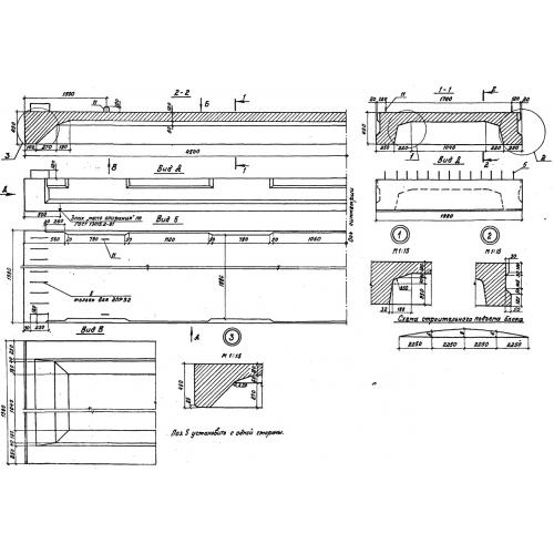
Характеристики изделия:
ПараметрЗначение
длина9000 мм
ширина1980 мм
высота450 мм
вес9800 кг
серия3.503.1-75

2ПР 9 Плита ребристая с ненапрягаемой арматурой по серии 3.503.1-75.