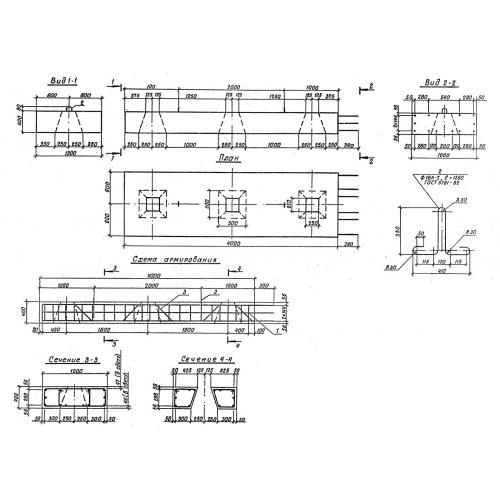
4БН 40
Характеристики изделия:
| Параметр | Значение |
|---|---|
| длина | 4000 мм |
| ширина | 1200 мм |
| высота | 400 мм |
| вес | 4330 кг |
| серия | 3.503.1-79 |
Цена:
Рассчитать стоимость4БН 40 Блоки насадок по серии 3.503.1-79.
| Параметр | Значение |
|---|---|
| длина | 4000 мм |
| ширина | 1200 мм |
| высота | 400 мм |
| вес | 4330 кг |
| серия | 3.503.1-79 |
4БН 40 Блоки насадок по серии 3.503.1-79.
