Ш 1

Чертеж изделия:
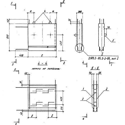
Характеристики изделия:
ПараметрЗначение
длина1380 мм
ширина200 мм
высота1050 мм
вес400 кг
нормативный документСерия 3.503.1-95

Ш 1 Блоки шкафных стенок по Серии 3.503.1-95.