ПЖБ 3-20 Плиты железобетонные шарнирно-соединяемые

Чертеж изделия:
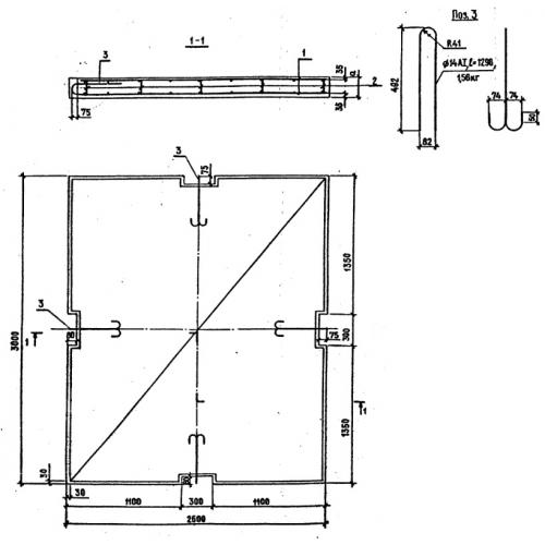
Характеристики изделия:
ПараметрЗначение
длина3000 мм
ширина2000 мм
высота200 мм
вес3000 кг
нормативный документСерия 3.503.9-78

ПЖБ 3-20 Железобетонные плиты с шарнирным соединением по Серии 3.503.9-78.