3ПО 10

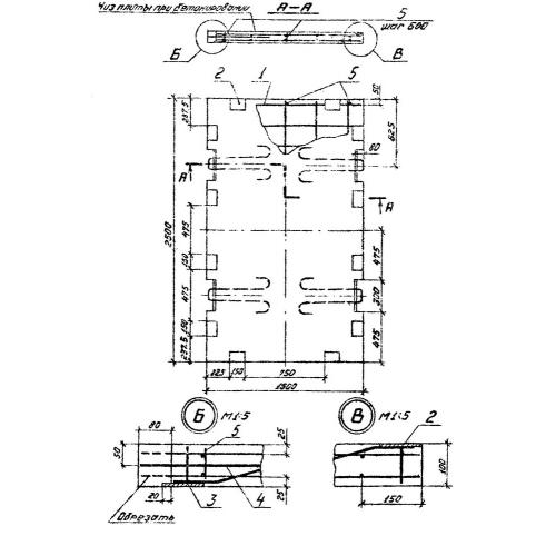
Чертеж изделия:
Характеристики изделия:
ПараметрЗначение
длина1500 мм
ширина2500 мм
высота100 мм
вес930 кг
серия3.505.1-16

3ПО 10 Плиты омоноличенные по серии 3.505.1-16.