ЖЛ

Чертеж изделия:
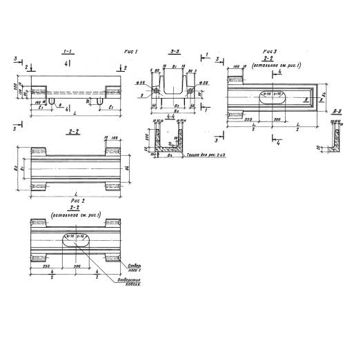
Характеристики изделия:
ПараметрЗначение
длина3000 мм
ширина470 мм
высота250 мм
вес260 кг
нормативный документСерия 3.602.1-1

ЖЛ Желоба линейные по Серии 3.602.1-1.