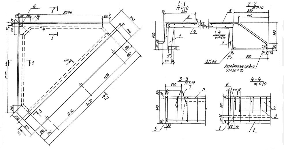
ДП 6.2

Чертеж изделия:
Характеристики изделия:
ПараметрЗначение
Длина2625 мм
Ширина2625 мм
Высота400 мм
Масса2300 кг
Нормативный документСерия 3.702.1-4

Плита днища ДП 6.2 по Серии 3.702.1-4.