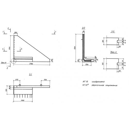
НГ 15
Характеристики изделия:
| Параметр | Значение |
|---|---|
| длина | 2100 мм |
| ширина | 680 мм |
| высота | 1500 мм |
| вес | 650 кг |
| серия | 3.820.1-73 |
Цена:
Рассчитать стоимостьНГ 15 Г-образная конструкция с ныряющей вертикальной стенкой по серии 3.820.1-73.
| Параметр | Значение |
|---|---|
| длина | 2100 мм |
| ширина | 680 мм |
| высота | 1500 мм |
| вес | 650 кг |
| серия | 3.820.1-73 |
НГ 15 Г-образная конструкция с ныряющей вертикальной стенкой по серии 3.820.1-73.
