2ПС 66

Чертеж изделия:
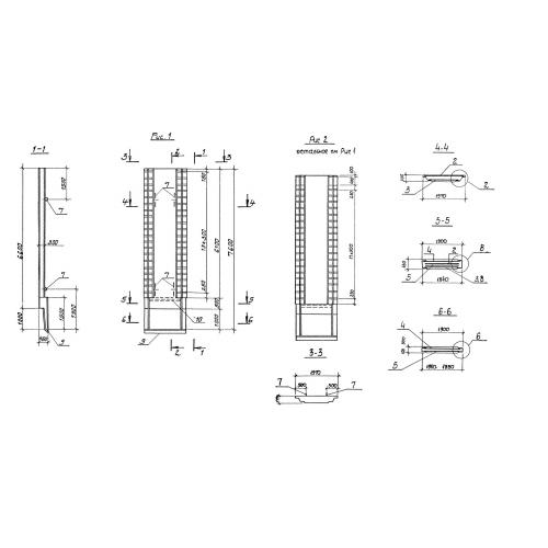
Характеристики изделия:
ПараметрЗначение
длина1970 мм
ширина450 мм
высота7600 мм
вес9650 кг
серия3.902.1-12

2ПС 66 Стеновые панели для опускных колодцев по серии 3.902.1-12.