2ПСТ 1 Стеновые панели

Чертеж изделия:
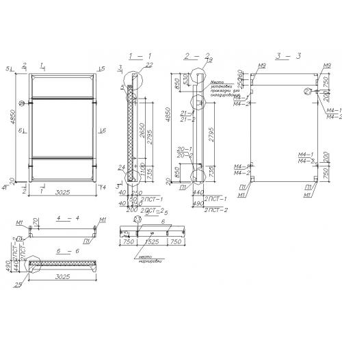
Характеристики изделия:
ПараметрЗначение
длина3025 мм
ширина440 мм
высота4850 мм
масса3370 кг
нормативный документСерия 7075-М

2ПСТ 1   Трехслойные стеновые панели торцевые по Серии 7075-М.