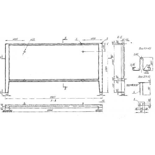
ПО 60.30.20

Чертеж изделия:
Характеристики изделия:
ПараметрЗначение
длина5980 мм
ширина200 мм
высота2985 мм
масса3530 кг
нормативный документСерия Б 3.017.1-4.03

ПО 60.30.20  Панели оград по Серии Б 3.017.1-4.03.