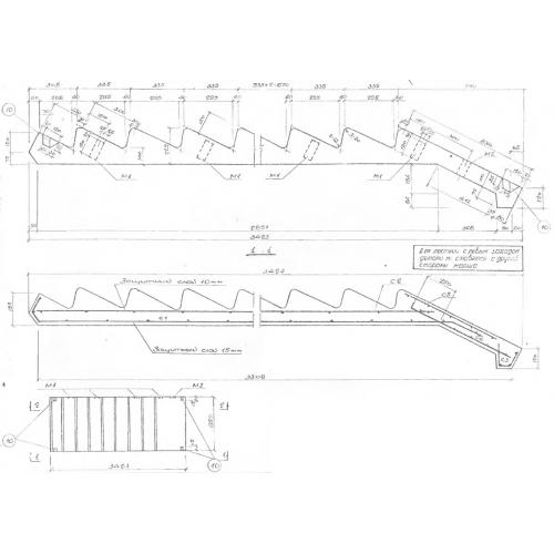
ЛМ 12-14 лестничные марши

Чертеж изделия:
Характеристики изделия:
ПараметрЗначение
длина3423 мм
ширина1350 мм
высота1200 мм
масса1750 кг
нормативный документСерия ИИ-65

ЛМ 12-14 Бетонные армированные лестничные марши по Серии ИИ-65.