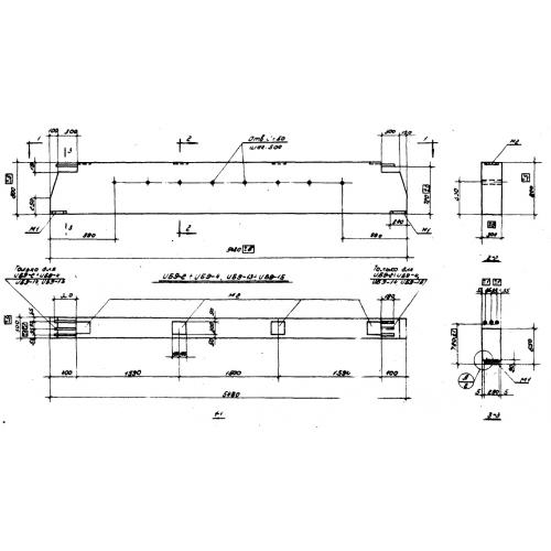
ИБ 9 ригели прямоугольного сечение

Чертеж изделия:
Характеристики изделия:
ПараметрЗначение
длина5480 мм
ширина300 мм
высота800 мм
масса3200 кг
нормативный документСерия ИИ 23-3/70

ИБ 9 Двухполочные (тавровые) ригели по Серии ИИ 23-3/70.