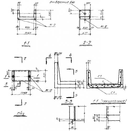
Л 4 д лотки доборные

Чертеж изделия:
Характеристики изделия:
ПараметрЗначение
длина1060 мм
ширина570 мм
высота530 мм
масса200 кг
нормативный документСерия ИС 01-04

Л 4 д   Железобетонные лотки доборные по Серии ИС 01-04.