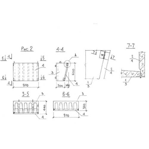
ВБО 9-6 вентблоки
Характеристики изделия:
| Параметр | Значение |
|---|---|
| длина | 600 мм |
| ширина | 910 мм |
| высота | 300 мм |
| масса | 280 кг |
| нормативный документ | Серия КУБ 2.5 |
Цена:
Рассчитать стоимостьВБО 9-6 Вентиляционные блоки с отверстием Серия КУБ 2.5.
| Параметр | Значение |
|---|---|
| длина | 600 мм |
| ширина | 910 мм |
| высота | 300 мм |
| масса | 280 кг |
| нормативный документ | Серия КУБ 2.5 |
ВБО 9-6 Вентиляционные блоки с отверстием Серия КУБ 2.5.
