ПСЛ 20
Характеристики изделия:
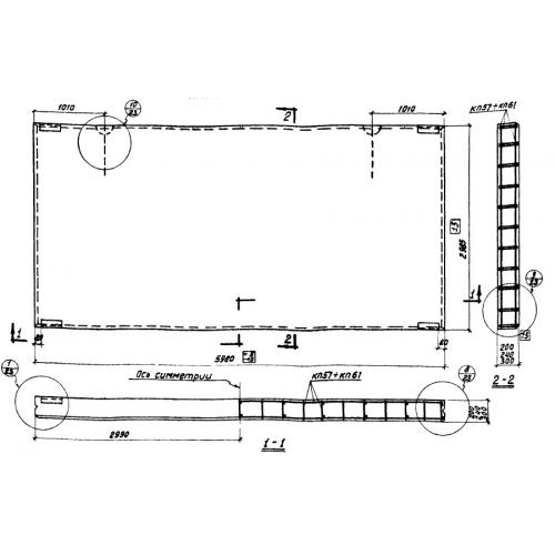
| Параметр | Значение |
|---|---|
| длина | 5980 мм |
| ширина | 2985 мм |
| высота | 200 мм |
| вес | 4900 кг |
| серия | СТ 02-33 |
Цена:
Рассчитать стоимостьПСЛ 20 Панели стеновые из легкого бетона по серии СТ 02-33.
| Параметр | Значение |
|---|---|
| длина | 5980 мм |
| ширина | 2985 мм |
| высота | 200 мм |
| вес | 4900 кг |
| серия | СТ 02-33 |
ПСЛ 20 Панели стеновые из легкого бетона по серии СТ 02-33.
